Успішний старт професійної кар’єри у співпраці з компанією «АРМА ЕКСПЕРТ»
У межах діяльності Центру кар’єри та сприяння працевлаштуванню здобувачів освіти Херсонського державного аграрно-економічного університету триває активна робота щодо налагодження співпраці з роботодавцями та створення нових можливостей для професійної реалізації студентської молоді.

У результаті налагодженої співпраці між Херсонським державним аграрно-економічним університетом та компанією «АРМА ЕКСПЕРТ» – провідною українською компанією у сфері юридичного та технічного супроводу будівництва – для здобувачів освіти було відкрито можливість професійного старту за фахом у сфері архітектурного проєктування.
За результатами конкурсного відбору на запропоновану вакансію архітектора-початківця успішно пройшла здобувачка 4 курсу спеціальності 191 «Архітектура та містобудування» ХДАЕУ Єлизавета Назаренко, яка після проходження співбесіди вже розпочала іспитовий термін в компанії.

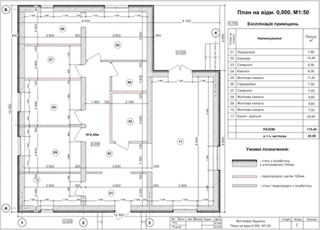
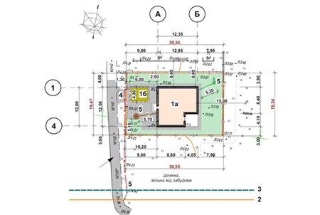
Під час навчання студентка здобула ґрунтовну підготовку у сфері архітектурного проєктування, зокрема за напрямами проєктування малоповерхових житлових будівель, генпланування та створення планувальних рішень. Завдяки професійним навичкам роботи в програмі ArchiCAD, здобувачка виконує плани поверхів, генплани, 2D фасади та базове 3D-моделювання.

У межах професійної діяльності в компанії Єлизавета вже долучається до виконання практичних архітектурних завдань, зокрема бере участь у розробці генерального плану, плануванні поверхів приватного садибного житлового будинку, підготовці фасадних планів, схем намірів забудови, а також оформленні дозвільної документації на початок виконання будівельних робіт.
Такий результат є яскравим прикладом того, як здобувачі освіти ХДАЕУ вже під час навчання можуть отримувати перший професійний досвід, працювати з реальними роботодавцями та впевнено розпочинати власну кар’єру.
Херсонський державний аграрно-економічний університет і надалі продовжує розвивати партнерські відносини з бізнесом, підтримувати талановиту молодь та сприяти успішному працевлаштуванню своїх студентів.
Автор: Центр кар’єри (24.04.2026)







